Конструкция стальных дверей
Металлическая (стальная) однопольная дверь состоит из коробки (рамы), к которой с помощью петель крепится полотно с вмонтированным в него замком. Полотно изготавливается из листовой стали толщиной 1,2...2 мм. Коробка, как правило, также изготавливается из листовой стали такой же толщины, которая гнётся в сложный профиль. Возможно изготовление торцевого либо углового профиля коробки. Двупольная (двустворчатая) металлическая дверь состоит из коробки и двух подвижных полотен. Пассивное полотно фиксируется, как правило, торцевой задвижкой. Внутреннее пространство полотна и коробки заполняется теплоизоляционным материалом (для утеплённых моделей: ДМУ-1 и ДМУ-2). От внутреннего заполнения зависит не только теплоизоляция, но и звукоизоляция двери.
По желанию заказчика возможно изготовление дверей из нержавеющие стали. Предусмотрено исполнение глухих дверей (без остекления), либо с остеклением.
Самая бюджетная конструкции подразумевают наличие только одного стального листа в полотне (так называемая техническая дверь, ДТ).
Непосредственно в дверной проём устанавливается коробка с петлями, а на следующем этапе на них навешивают полотно. Общий вид двери показан на рисунке.
-
Дверной блок в сборе
-
Коробка дверного блока
-
Дверной блок в разрезе без утепления
-
Дверной блок в разрезе с утеплением
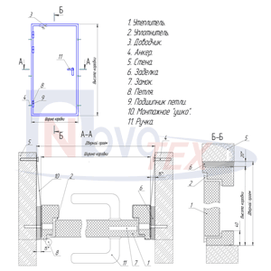
Рисунок. Металлический дверной блок: 1 — полотно; 2 — коробка; 3 — уплотнитель; 4 — обналичка; 5 — отверстие для противосъемного ригеля (штыря); 6 — отверстие для вертикального ригеля; 7 — монтажное «ушко»; 8 — глазок; 9 — петля; 10 — ребро жёсткости; 11 — наружный стальной лист полотна; 12 — утеплитель
Конструкция стальной двери отличается:
- прочностью коробки, изготовленной из цельногнутого металлического профиля;
- удачным дизайном;
- прочностью дверного полотна, достигаемого за счет рёбер жёсткости;
- возможностью покраски в различные цвета каталога RAL;
- возможностью (по желанию заказчика) установки дополнительной декоративной отделки:
- панелей МДФ с фрезеровкой рисунков и плёнкой ПВХ;
- накладок из массивов натуральных пород древесины, как правило из дуба;
- обтяжки полотна винилискожей;
- обрамление двери элементами ковки.
- Нижняя петля.
- Дверная коробка.
- Отверстие для вертикального ригеля (опция).
- Листовая сталь.
- Монтажная коробка замка.
- Закладные для распорных тяг (опция).
- Притвор.
- Рёбра жёсткости.
- Противосъёмные элементы (опция)
- Утеплитель.
Стальные двери находят широкое применение в различных областях современной деятельности человека и устанавливаются в жилых многоквартирных и частных домах, в производственных, промышленных, административных зданиях, в учреждениях торговли и т. д.
Прочность и жёсткость дверей, пригодность к эксплуатации в заданных условиях обеспечивается соответствующим конструктивным решением и применяемыми материалами (комплектующими изделиями), в соответствии с конструкторской и нормативной документацией. Металлические двери нашего производства обладают достаточной прочностью и устойчивостью в условиях транспортирования, монтажа и эксплуатации.
Конструкция дверей предусматривает возможность установки запоров, которые могут быть открыты изнутри без ключа: так называемые устройства «Антипаника» по ГОСТ 31471.
Комплектующие изделия могут подвергаться правке (замене), не снижающей заданные характеристики всего изделия.
Влагостойкость, стойкость к статическому воздействию растворов различных солей и другие параметры надёжности определяются производителем декоративного покрытия (краски).
Важным фактором в обеспечении защитных функций являются замок стальной двери: от его качества и надёжности фактически зависит устойчивость к взлому всего изделия. Вторым важным фактором является профессиональная установка стальных дверей.
Естественно, что дополнительные элементы, повышающие степень защиты могут ощутимо увеличить цену стальных дверей.
Двери Новотекс пригодны для использования в умеренно холодном (УХЛ) климате любой категории размещения, кроме пятой, по ГОСТ 15150, при температуре эксплуатации от минус 70 °С и до плюс 45 °С. При рабочей температуре воздуха от минус 70 °С до минус 30 °С обязательно изготовление изделий только из морозостойкой стали.
Конкретные значения габаритных размеров изделий устанавливаются по согласованию с заказчиком, в зависимости от размеров проёмов в здании или сооружении. Вы можете заказать и купить двери любых размеров.
Каждая единица продукции упаковывается, как правило, в гофрокартон.
Перевозка (доставка) противопожарных дверей может осуществляться любым видом транспорта, при условии защиты их от загрязнения и механических повреждений, в соответствии с правилам и перевозок грузов, действующими на данном виде транспорта.
Спецификация на металлические двери
Ассортимент |
|---|
Примечания:
|
Назначение |
|
Стандартная комплектация |
|
Дополнительная комплектация |
|
Варианты стальных дверей
Чертеж двери металлической утепленной
Примеры металлических дверей
-
ДМУ-1, отделка панелью МДФ
-
ДМУ-1, отделка панелью МДФ
-
ДМУ-1, отделка массивом дуба
-
ДМУ-2 с устройством «Антипаника»
-
ДМУ-2, отделка массивом дуба
-
ДМУ-1, покраска цветом медный антик
-
ДМУ-1, отделка панелью МДФ изнутри
-
ДМУ-1, отделка панелью МДФ
-
ДМУ-1, замковая зона с двумя замками и задвижкой «ночной сторож»
-
Замковая зона двери с одним замком
-
ДМ-1, дверь металлическая однопольная с вентиляционными решётками для электроподстанций
-
ДМ-2, дверь металлическая двупольная с вентиляционными решётками для электроподстанций
-
ДМУ-2, без порога







